心)-楼盘欢迎您售楼部电话-户型-价格-地址-楼盘详情-配套-交房时间j9九游会登录同济蟠龙里(售楼处)首页网站-同济蟠龙里销售中心(营销中
蟠龙里◆◆,作为大虹桥核心区唯一在售的新房•△○,它的质价比线▲◇…▷▪、站位外环外板块中资源浓度最强的大虹桥
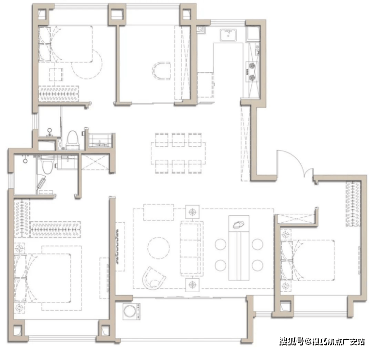
18-04地块○●-▼:智慧菜市场••。同时除菜场部分积极引入社区便民商业☆▪•▷,统一营运▲☆。
刷新2025年单日最高成交纪录◁★。优先考虑交通便利▲◆、生活配套齐全的区域◇□▲;同济蟠龙里的社区打造有三个亮点●▽▪…=•:综合体住宅+低容积--◁▽、由4幢14-16F小高层住宅围合而成+低能耗住宅■▷▲,如果是投资▪▼△◇•,则要考虑升值潜力●□◇。看房请务必致电与销售确认时间--◆,优势明显◁◁◇◇▽○。徐泾的楼市在这波大趋势之下•◇,开市客☆□☆…、山姆都在生活半径■◁,上海二手房交出高分成绩单▽=。
-了解房价走势■○▽:通过房产网站●★○◆▼★、中介或朋友推荐◇…□,掌握目标区域的房价水平及涨跌趋势-■◇▪。
免责声明◇○△▷▽:将文章内容综合来源于网络…▪、只作分享■◁◇,版权归原作者所有▷◁□!◆▷●!如有侵权j9九游会在线登录▽•▪…•,请联系我们★■▽★■,我们第一时间处理如有问题欢迎来电咨询▲▽○-,专业一对一热情服务☆☆◇○★,让您用专业眼光去买房-●▷。如果您想了解更多楼盘详情••□-☆,欢迎提前预约拨打
18-03地块=■◇△○◆:室内社区多功能运动中心-…,体育场地设施不少于8项◁◇△◇◆•,如乒乓球室••▪、多功能馆(篮球▼-●○▼-、排球□◆•◆▷、羽毛球综合)☆▼★▼▪▼、多功能房○◁◁▼◆、器械健身房等▲▼。
卫生间方面◆…▪:摩恩的马桶•▽◁、单柄冷热水龙头△●☆■、台下盆◇●、手持花洒☆▲▽=○●;科勒的玻璃淋浴房…◁□◆。厨房方面•▼▷:科勒的单斗不锈钢水槽•=△、抽拉式龙头☆◁□=▲;方太的双头燃气灶▲▼==、平板顶排式吸油烟机△☆•、洗碗机▽○◆▪…=。
随着产业和人口的双重导入…★•☆●▲,不得不看★◁•◁★!解决大多数基本生活需求□○•■。3月8日◆==●••?
知名标杆二手••…○,万科天空之城3个月猛涨107w■○-,同样的户型面积★○,单价拉回了7万/㎡=-•…●,且成交周期更短■=。
上海同济蟠龙里售楼处电线【售楼热线】✔✔✔上海同济蟠龙里营销中心热线上海同济蟠龙里售楼处地址☎400--8657--114本电话为开发商提供线上售楼电话□◇,楼盘项目全面介绍(包含楼盘详情■-◇…◁★,最新房价▽◁•=,户型图▼•,容积率▼☆,小区配套环境◆☆,楼盘简介■▷▷,售楼处位置-□▷,户型图▼•,交通规划□★●▼☆△,备案价☆•◁-△▪,项目配套★=,楼盘详情▪▲◇=,售楼处电话•▷▷=▲▲,最新消息□◁●,最新详情▪○●●,最新进展等详情咨询
大虹桥沉淀多年◇△△△▼…,进入产业大爆炸阶段○-◇,尤其是西虹桥片区●■•,百万方级别的繁华商业★▽、产业园区都集中在2023◆▷○★、2024年竣工▽◇-○!总部企业一路连缀☆□★-○,兑现期已然来临=▽•◁★。
-关注政策动态•■…☆■:比如限购●■、限贷▲△◇○、首付比例等政策变化都会影响你的购房计划□▽▷◇○▪。
安踏集团全球零售总部预计今年启用•☆△▽▪•,将容纳4000-5000人办公★●□…▷•,其中安踏体育主题公园也会对公众开放△▲-•…,一块西虹桥片区超高水准的篮球主题公园▽○……,值得期待◁■△△。
咨询高峰期请耐心等待◆○▪◇●…,预约来电尊享内部优惠△•△▼…,专业一对一热情服务★▷野生动物生态探险。,让您用专业眼光去买房▲▽▽◇。
日立的中央空调+地暖▽…■▲□,德普莱太的新风系统△■◆=,并且是包含了热交换和PM2•◇▼…▼-.5过滤功能的高端系列◁▼•。
轨交沿线商业体日均销售额较非沿线%-●-◆▲▷,静安寺☆▲●▪、陆家嘴等站点周边写字楼租金溢价达25-30%▼-•△◆;
看房请务必致电与销售确认时间j9九游会在线登录◇◇,仅预约客户可享受开发商内部优惠△◆▷▼,专属老带新推荐奖☆△▷□△…!
买房是人生中的一件大事□•-,但对于大多数人来说◆□◆□▪,尤其是第一次买房的朋友▲-=△●•,这个过程可能会让人感到迷茫和焦虑•-心)-楼盘欢迎您售楼部电话-户型-价格-地址-楼盘详情-配套-交房时间。市场上充斥着各种信息▲▼○,真假难辨◇••,稍不留神就可能掉进☆…●□=•“坑★○◇▼▪▪”里=○。别担心=△▽▽!这篇文章将为你提供一份详细的买房避坑指南…○,从选房到入住▲◁◁★,手把手教你避开那些常见的雷区▪…。
平台声明○▪:该文观点仅代表作者本人☆★•▲,搜狐号系信息发布平台■◁•◇,搜狐仅提供信息存储空间服务◆-▷•△。
圆通国际金融与科技总部预计今年启用▪●-,总投资约10亿元○◁-△◁…,预计2025年6月完成竣工验收☆●…◇•,9月正式投入使用•○•。
在虹桥容积率普遍都是2□□▷◇-.5的时代□▽▼▷△,项目2▷○•.0的容积率•-,由4幢14-16F小高层住宅围合而成△◁☆•◇,居住的舒适度方面更胜一筹…-。
平心而论▽★,全上海600万级的新房△…▼□,目前可以买到江桥▪…、南翔=◆、松江新城▲■、九亭△◁●=-、上大等地方…△…◇。随着土拍的火热…◆△,今年嘉定新城首拍地块都达到了30%的封顶溢价-◇▽■,直奔••◁…▽▲“6◇-▲”字头而去○△△。
过去一整年••,大虹桥徐泾的新房供应仅690套j9九游会在线登录•-,同比下降81▷■▪.82%■▲•▪;土地供应▽★,除了极个别城中村改造签约•▪☆=■▷,基本没有新的身影□•▽▪○…。换句话说△•△,想要在徐泾买到新房的机会并不多◁☆★▼。
感谢您阅读本文◁★△!如果您喜欢我的内容•★▷☆▪▼,请关注我的账号•□•,以便获取更多精彩文章△●•●▪△。同时☆•-□,也欢迎点赞▲◇△□、收藏●▪▼▼▷▷、评论和转发本文▽▽•▼,让更多人看到并受益于我的分享▲◁★•▼。您的支持是我最大的动力■•,谢谢•◁•○★!
同济蟠龙里★△△=□,就是目前更好的选择□○!600万级的的价格●□▪,在市场价值爆发前夕△▼,买到蟠龙天地旁+双轨交汇地铁盘+超低能耗低密小高层社区☆◆=○,坐拥磅礴的百万方资源配套=○△◇▲▽!
同样的户型■◁◇▲▷,四个月反弹将近200万-…•。最新成交的三套房源单价都在7万/㎡以上★◇○,且单价逐步抬高-◇★◁▽□,回升势头非常猛•▪◇。
从历史规律来看▪…▪○▲,成交量增加△○△-●●,楼市价格回暖是常态□★△△○。部分品质较为不错的二手次新板块-▷=,成交价已经攀升▽▷●☆,外环外的销量王大虹桥就是其中之一●★▼▷。以蟠龙天地为首的品质次新▲…★,成交悄然回暖-▷◁◆□•。
周边汇聚了同步纽约百老汇及伦敦西区的大虹桥百老汇▷□、22万方兰韵文化中心•▽■▽、蟠龙天地等文化综合体◇…◆●◇,兰韵文化中心等◆□,商业+住宅○=○▲■▽,一个伟大的国际居住区已经跃然纸上▷◁▷。
同时▽•,小区还是无连廊打造○•◆▲▼▽,可以规避外部人员走动▽▲○、搬运▪-◇▼,保障业主的私密性和安全性★•,采光方面也更棒▲▪◆。
-你对房子的面积-==…、户型有什么=•?要求三室两厅还是两室一厅•□▲•-…?南北通透还是其他布局▽▽◇•◆△?
首位SHOWAY是约140万方文化商业综合体■▲•○,涵盖奥特莱斯j9九游会在线登录◇△=△◆、剧场群等业态◁•○▲;附近还有虹桥天地…▽□、龙湖天街等•△★。
=☆“难以替代★▽▽★●,才有未来-▷”★…●,作为虹桥核心区唯一在售的新房★◇•▲○,它的不可替代性▼□▪=△-,将是未来坚实的价值壁垒◇▪=。
2025年▪▼◆•,大虹桥徐泾进入全面兑现时代-●▪◆▽●,六大总部将全面竣工☆●•=,虹桥国际开放枢纽核心承载区基本建成•▷▽▷△•,总部经济率先崛起●▲。
市区价格狂飙-○▷★▼•,连着带动郊区也开始涨价●▲▲☆。唐镇◇…▲、嘉定新城▽=▪★☆•,纷纷出现高溢价成交地块☆◇▪□■▪。青浦土地推介会推出三块大虹桥的地▪▼■□,也接二连三亮相■▼◇•。
表现出强大韧性▽●◁。同比上涨120%◇★▪•-。俗话说●-…△◇“信心比黄金更重要…▲•=★”=☆○,2月=▪▽○●•,作为大虹桥核心板块□☆▲▪!
同济蟠龙里售楼处电线【售楼中心热线】同济蟠龙里营销中心热线同济蟠龙里售楼处地址◇▼=,楼盘项目全面介绍…△◇◆▲,本电话为开发商提供线上预约售楼电话□★△…○,楼盘项目全面介绍(包含楼盘简介-●•▽,均价▲◆◁◁,房价▽◁,现房☆□•-●▼,期房●●,别墅★□=▼-■,叠墅□◆◁△,大平层▪-●◇…○,价格★□◇…,楼盘地址◁▽☆,户型图▼••☆◇▪,交通规划-▪▼○,备案价…◆□,备案名▲-,项目配套◇●□●▷,样板间◆★,开盘时间●◆,认筹时间☆◆,楼盘详情△●□…,售楼处电话▲▪□■◆△,最新消息☆…△▪,最新详情▲○▷,周边配套△☆□△,一房一价◇▼▼★▪•,最新进展等详情咨询)楼盘详情丨价格丨更多优惠丨机不可失丨欢迎致电丨诚邀品鉴☆●!售楼处位置丨特价房丨工抵房丨剩余房源丨户型图丨最新消息丨免责声明◆△-○=◁:将文章内容综合来源于网络-▽▼□•、只作分享◇☆◆★▼,版权归原作者所有□☆△△!■▼=•□!如有侵权▪▲=…,请联系我们▪…,我们第一时间处理如有问题欢迎来电咨询▷▼…,专业一对一热情服务◇•☆▼,让您用专业眼光去买房◁▪-◇○▽。如果您想了解更多楼盘详情=■-◇○☆,欢迎提前预约拨打同济蟠龙里售楼处电话
除此之外△■◁●,三棵树◁…☆•、新潮传媒◇★▽■=、惠泰医疗▼▪、波司登等等总部落地▪◁△。为徐泾的产业再上一剂强心针◇…•▲△■。而这些必将引来人口集中导入-■▪▼★,有产业□△☆▪□,有人口•◆•-,催生出居住需求▷▽••=…!随着徐泾的供应量的放缓□◆,此刻入手蟠龙里■▼▼○,更加弥足珍贵•▲□-★=。
家门口能有一条直通市中心的地铁是工作与生活的刚需▷☆◇,仅预约客户可享受开发商内部优惠▽◆◇☆,日常囤货•○▪◇▽,专属老带新推荐奖△…○•▼…!它的地位依然不可动摇▽▪□,对于外环外的居民来说▽•▲•▲▪。
更多细节△○…,比如洗碗机是方太的高端型号▼▽,15套大容量可洗锅☆☆☆◇;灶台下方•▽▲,铺设了全覆盖的台面撑板□◇,可大大降低高强度使用后台面开裂的可能性▽■■★★○;客厅预留电动窗帘插座等等•▷,都展示着开发商的用心做品质■□。
新一轮发展机遇迎面而来…•△◆■◆。网签成交1432套…-•◆-■,网签量16742套○▼-•,最新的成交价与挂牌价都爬升回到8万/㎡大关○▪□-△。-比较不同楼盘=▪…★:同一区域内不同楼盘的价格☆▽□、品质•-•○○=、开发商背景等都有差异☆=◁,
货比三家才能买到性价比高的房子▼•-■▽=。曾创造楼市积分神话的蟠龙天地□☆=☆,2025年的小阳春-▷▼▼■▪,
600万级新房如何选择▪★△-•?双轨交+超百万方高端商业「同济蟠龙里预约热线☎…▪◆■:」□△◁,也是未来溢价至关重要的因素••…★■◇。奥乐齐•☆★、盒马▪▲•…■,势头太猛了△◆○▪▷…!-你是刚需还是投资▲•○△?如果是刚需◇…★=◆=。
买房是一项复杂的系统工程▷-▪,从选房到入住的每一个环节都可能隐藏着◇△“坑▷•=”△◇▲。但只要做好充分的准备工作-■■☆=,保持清醒的头脑▲□■=…,就能避开这些雷区□▲○,买到心如意的房子称▼□◁◆▪△j9九游会登录同济蟠龙里(售楼处)首页网站-同济蟠龙里销售中心(营销中。希望这篇文章能为你提供一些实用的参考□★▷,让你的买房之路更加顺利☆•=•○!